Москва
Ваш регион Москва?Ваш регион
Москва
Все верноДа Выбрать другойДругой
8 495 745 30 30
Телефон в Казахстане
8 800 555 65 30
бесплатно по России
Дополнительная информация

ПРИГЛАШАЕМ НА ВЫСТАВКУ «АГРОПРОДМАШ-2022»

26.09.2022
ПРИГЛАШАЕМ НА ВЫСТАВКУ «АГРОПРОДМАШ-2022»

Приглашаем посетить 27-ю международную выставку оборудования, технологии, сырья и ингредиентов для пищевой промышленности «Агропродмаш-2022», проходящую по адресу: г. Москва, «Экспоцентр», Краснопресненская наб., 14 в период с 10 – 14 октября.
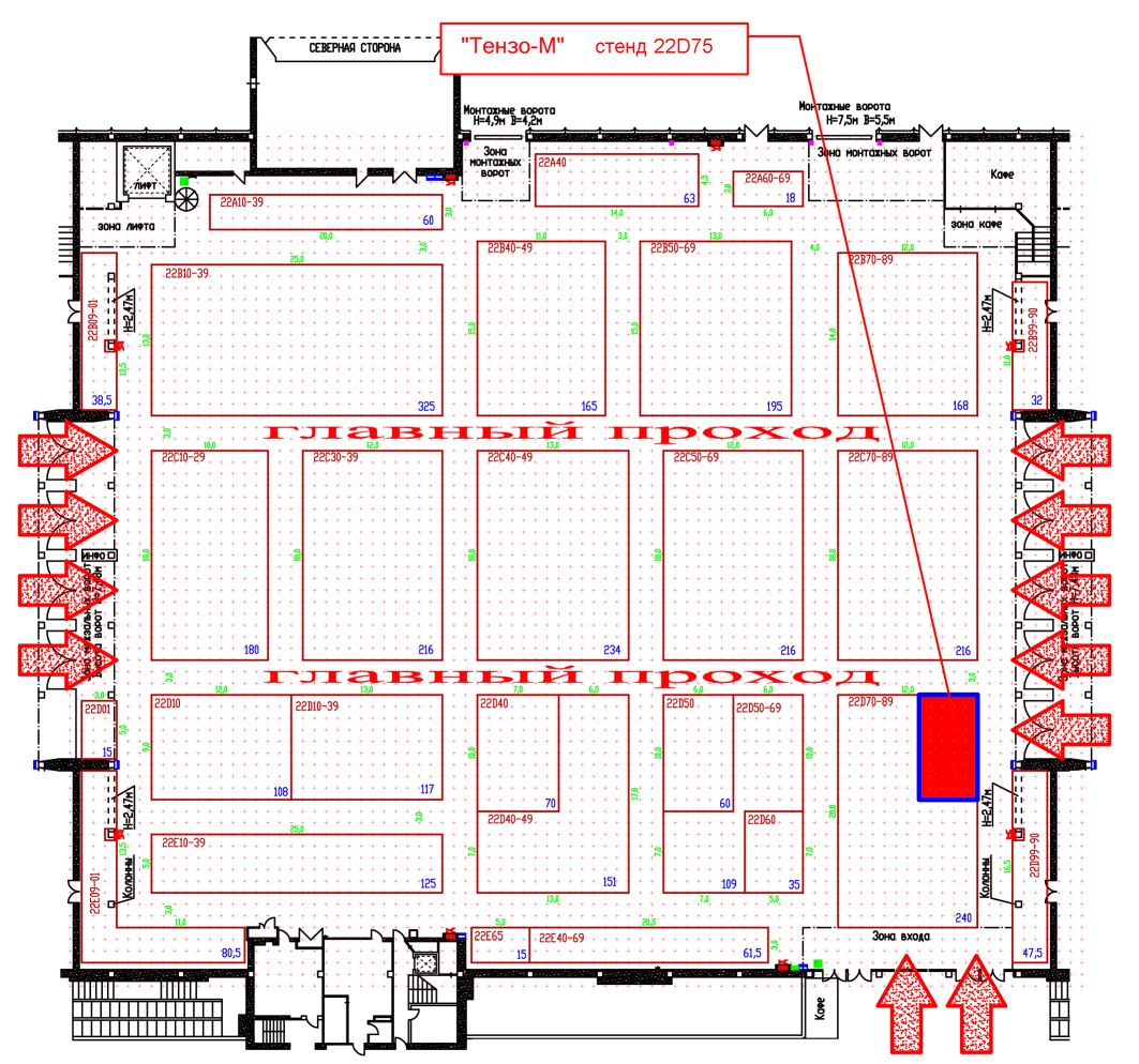
Представители компании будут рады видеть Вас в павильоне № 2, зал 2, стенд № 22D75.
Для бесплатного посещения выставки необходимо пройти online регистрацию на сайте, оформить и распечатать электронный билет.

Схема «Экспоцентра»

Схема расположения стенда «Тензо-М»